Меню
Корзина 00 ₽
    Поддержка
    • +7 (918) 988-97-99
    • +7 (861) 205-05-65

    Пн-Пт, с 09:00-18:00 (МСК)

    МетеоЦентр
    • +7 (918) 988-97-99
    • +7 (861) 205-05-65
    • Обратный звонок
      Заказать обратный звонок
    Каталог
      Поиск
      • Доставка
      • Гарантия и возврат
      • О нас
      • Контакты
      • Отзывы о магазине
      • +7 (918) 988-97-99
      • +7 (861) 205-05-65
      • Обратный звонок
      Заказать обратный звонок
      МетеоЦентр
      Корзина 00 ₽
      Корзина
      Ваша корзина пуста!
      • Кондиционирование
        • {]Мульти сплит системы
          • Eurohoff
            • Внутренние блоки
        • Настенные сплит системы
          • Aeronik
          • AUX
          • Ballu
          • Berlingtoun
          • Casarte
          • Centek
          • Chigo
          • Dahatsu
          • Daichi
          • Daikin
          • Denko
          • Electrolux
          • Eurohoff
          • Gree
          • Green
          • Haier
          • Hisense
          • Jax
          • Kentatsu
          • Kitano
          • Lessar
          • LG
          • Midea
          • Mitsubishi Electric
          • Mitsubishi Heavy
          • Panasonic
          • QuattroClima
          • Rovex
          • ROYAL Clima
          • Toshiba
          • Tosot
          • Бирюса
        • Промышленные и полупромышленные кондиционеры
          • Колонные кондиционеры
            • Eurohoff
          • Канальные кондиционеры
            • AUX
            • Ballu
            • Centek
            • Daichi
            • Electrolux
            • Energolux
            • Euroklimat
            • Funai
            • Hitachi
            • IGC
            • Kentatsu
            • Kitano
            • LG
            • Midea
            • Panasonic
            • QuattroClima
            • ROYAL Clima
            • Samsung
            • TCL
            • Toshiba
            • Tosot
            • Aeronik
            • Dahatsu
            • Daikin
            • Dantex
            • Denko
            • Gree
            • Haier
            • Hisense
            • Jax
            • Lessar
            • Mitsubishi Electric
            • Mitsubishi Heavy
            • Rovex
            • Royal Clima
            • Systemair
            • Бирюса
          • Кассетные кондиционеры
            • AUX
            • Ballu
            • Daichi
            • Energolux
            • Eurohoff
            • Euroklimat
            • Funai
            • Hitachi
            • IGC
            • Ishimatsu
            • Kentatsu
            • Kitano
            • LG
            • Midea
            • Panasonic
            • QuattroClima
            • ROYAL Clima
            • Samsung
            • TCL
            • Tosot
            • Aeronik
            • Berlingtoun
            • Centek
            • Dahatsu
            • Daikin
            • Dantex
            • Denko
            • Electrolux
            • Gree
            • Haier
            • Hisense
            • Jax
            • Lessar
            • Mitsubishi Electric
            • Mitsubishi Heavy
            • Rovex
            • Systemair
            • Toshiba
            • Бирюса
          • Колонные кондиционеры
            • Aeronik
            • Ballu
            • Centek
            • Dahatsu
            • Daikin
            • Dantex
            • Denko
            • Energolux
            • Gree
            • Haier
            • Hisense
            • IGC
            • Jax
            • Kentatsu
            • Lessar
            • LG
            • Midea
            • Mitsubishi Electric
            • Mitsubishi Heavy
            • ROYAL Clima
            • Systemair
            • TCL
            • Toshiba
            • Бирюса
          • Напольно потолочные кондиционеры
            • AUX
            • Ballu
            • Daichi
            • Energolux
            • Euroklimat
            • Funai
            • Hitachi
            • IGC
            • Ishimatsu
            • Kentatsu
            • Kitano
            • LG
            • Midea
            • Panasonic
            • QuattroClima
            • Rover
            • ROYAL Clima
            • Samsung
            • TCL
            • Toshiba
            • Tosot
            • Aeronik
            • Berlingtoun
            • Centek
            • Dahatsu
            • Daikin
            • Dantex
            • Denko
            • Electrolux
            • Gree
            • Haier
            • Hisense
            • Jax
            • Mitsubishi Electric
            • Mitsubishi Heavy
            • Rovex
            • Royal Clima
            • Systemair
            • Бирюса
        • Мульти сплит системы
          • Aeronik
            • Внутренние блоки
            • Наружные блоки
          • AUX
            • Внутренние блоки
            • Наружные блоки
          • Berlingtoun
            • Внутренние блоки
            • Наружные блоки
          • Casarte
            • Внутренние блоки
            • Наружные блоки
          • Daichi
            • Внутренние блоки
            • Наружные блоки
          • Eurohoff
            • Внутренние блоки
            • Наружные блоки
          • Gree
            • Внутренние блоки
            • Наружные блоки
          • Jax
            • Внутренние блоки
            • Наружные блоки
          • Midea
            • Внутренние блоки
            • Наружные блоки
          • QuattroClima
            • Внутренние блоки
            • Наружные блоки
          • Rovex
            • Внутренние блоки
            • Наружные блоки
          • ROYAL Clima
            • Внутренние блоки
            • Наружные блоки
          • Toshiba
            • Внутренние блоки
            • Наружные блоки
          • Tosot
            • Внутренние блоки
            • Наружные блоки
          • Бирюса
            • Внутренние блоки
            • Наружные блоки
          • Ballu
            • Внутренние блоки
            • Наружные блоки
          • Dahatsu
            • Внутренние блоки
            • Наружные блоки
          • Daikin
            • Внутренние блоки
            • Наружные блоки
          • Denko
            • Внутренние блоки
            • Наружные блоки
          • Electrolux
            • Внутренние блоки
            • Наружные блоки
          • Haier
            • Внутренние блоки
            • Наружные блоки
          • Hisense
            • Внутренние блоки
            • Наружные блоки
          • Kentatsu
            • Внутренние блоки
            • Наружные блоки
          • Lessar
            • Внутренние блоки
            • Наружные блоки
          • Mitsubishi Electric
            • Внутренние блоки
            • Наружные блоки
          • Mitsubishi Heavy
            • Внутренние блоки
            • Наружные блоки
          • Panasonic
            • Внутренние блоки
            • Наружные блоки
        • Мобильные кондиционеры
          • Electrolux
          • Hisense
          • Midea
          • ROYAL Clima
          • Symphony
          • Ballu
        • VRF системы
          • Aeronik
            • Внутренние блоки
            • Наружные блоки
          • AUX
            • Внутренние блоки
            • Наружные блоки
          • Ballu
            • Внутренние блоки
          • Dahatsu
            • Внутренние блоки
            • Наружные блоки
          • Daikin
            • Внутренние блоки
            • Наружные блоки
          • Dantex
            • Внутренние блоки
            • Наружные блоки
          • Electrolux
            • Внутренние блоки
            • Наружные блоки
          • Energolux
            • Внутренние блоки
            • Наружные блоки
          • General Climate
            • Внутренние блоки
            • Наружные блоки
          • Gree
            • Внутренние блоки
            • Наружные блоки
          • Haier
            • Внутренние блоки
            • Наружные блоки
          • Hisense
            • Внутренние блоки
            • Наружные блоки
          • Hitachi
            • Внутренние блоки
            • Наружные блоки
          • IGC
            • Внутренние блоки
            • Наружные блоки
          • Jax
            • Внутренние блоки
          • Kentatsu
            • Внутренние блоки
            • Наружные блоки
          • Lessar
            • Внутренние блоки
            • Наружные блоки
          • LG
            • Внутренние блоки
            • Наружные блоки
          • Midea
            • Внутренние блоки
            • Наружные блоки
          • Mitsubishi Electric
            • Внутренние блоки
            • Наружные блоки
          • Mitsubishi Heavy
            • Внутренние блоки
            • Наружные блоки
          • Panasonic
            • Внутренние блоки
            • Наружные блоки
          • QuattroClima
            • Внутренние блоки
            • Наружные блоки
          • ROYAL Clima
            • Наружные блоки
          • Samsung
            • Внутренние блоки
            • Наружные блоки
          • Systemair
            • Внутренние блоки
            • Наружные блоки
          • TCL
            • Внутренние блоки
            • Наружные блоки
          • Toshiba
            • Внутренние блоки
            • Наружные блоки
        • Фанкойлы
          • Канальные фанкойлы
            • Aermec
            • Aeronik
            • Clivet
            • Daikin
            • Dantex
            • Electrolux
            • Energolux
            • General Climate
            • Gree
            • Haier
            • IGC
            • Kentatsu
            • Kitano
            • Lessar
            • Neoclima
            • Royal Clima
            • Sakata
            • Systemair
            • TICA
            • Timberk
            • Тепломаш
          • Кассетные фанкойлы
            • Aermec
            • Aeronik
            • Clivet
            • Daikin
            • Dantex
            • Electrolux
            • Energolux
            • Ferrum
            • General Climate
            • Gree
            • Haier
            • IGC
            • Kentatsu
            • Kitano
            • Lessar
            • Royal Clima
            • Sakata
            • Systemair
            • TICA
            • Timberk
            • Тепломаш
          • Напольно потолочные фанкойлы
            • Aermec
            • Clivet
            • Daikin
            • Dantex
            • Electrolux
            • Energolux
            • Gree
            • IGC
            • Kentatsu
            • Kitano
            • Lessar
            • Royal Clima
            • Systemair
            • TICA
            • Тепломаш
          • Настенные фанкойлы
            • Aermec
            • Aeronik
            • Clivet
            • Daikin
            • Dantex
            • Electrolux
            • Energolux
            • Ferrum
            • General Climate
            • Gree
            • IGC
            • Kentatsu
            • Kitano
            • Lessar
            • Royal Clima
            • Systemair
        • Чиллеры
          • Belluna
          • Clivet
          • Dahatsu
          • Dantex
          • Electrolux
          • Energolux
          • Euroklimat
          • Haier
          • IGC
          • Kentatsu
          • Royal Clima
          • Systemair
          • TICA
        • Прецизионные кондиционеры
          • Dunham Bush
          • Euroklimat
          • ITK
        • Крышные кондиционеры
          • Dantex
          • Dunham Bush
          • General Climate
          • IGC
          • Kentatsu
        • Компрессорно конденсаторные блоки
          • Clivet
          • Daikin
          • Dantex
          • Electrolux
          • Energolux
          • General Climate
          • Gree
          • Haier
          • IGC
          • Kentatsu
          • Kitano
          • Lessar
          • Mitsubishi Heavy
          • Royal Clima
          • Systemair
      • Техника для дома
        • Вакуумные упаковщики
          • Asko
          • De Dietrich
          • Gaggenau
          • Kuppersbusch
          • Smeg
          • V-ZUG
        • Варочные панели
          • Asko
          • Bertazzoni
          • Brandt
          • De Dietrich
          • Elica
          • Faber
          • Falmec
          • Franke
          • Gaggenau
          • Ilve
          • Kaiser
          • Kuppersbusch
          • Signature Kitchen Suite
          • Smeg
          • V-ZUG
        • Варочные центры
          • Bertazzoni
          • Kaiser
          • Smeg
        • Вытяжки
          • Asko
          • Bertazzoni
          • Brandt
          • De Dietrich
          • Elica
          • Faber
          • Falmec
          • Franke
          • Gaggenau
          • Ilve
          • Kaiser
          • Kuppersbusch
          • Smeg
          • V-ZUG
        • Духовые шкафы
          • Asko
          • Bertazzoni
          • Brandt
          • De Dietrich
          • Elica
          • Franke
          • Gaggenau
          • Ilve
          • Kaiser
          • Kuppersbusch
          • Signature Kitchen Suite
          • Smeg
          • V-ZUG
        • Комби-панели, фритюрницы и грили
          • De Dietrich
          • Gaggenau
          • Ilve
          • Kuppersbusch
          • Smeg
          • V-ZUG
        • Кофемашины
          • Asko
          • Bertazzoni
          • De Dietrich
          • Franke
          • Gaggenau
          • Ilve
          • Kaiser
          • Kuppersbusch
          • La Pavoni
          • Smeg
          • V-ZUG
        • Микроволновые печи
          • Asko
          • Bertazzoni
          • Brandt
          • De Dietrich
          • Franke
          • Gaggenau
          • Ilve
          • Kaiser
          • Kuppersbusch
          • Smeg
          • V-ZUG
        • Морозильники
          • Asko
          • Bertazzoni
          • De Dietrich
          • Franke
          • Kuppersbusch
          • Signature Kitchen Suite
          • Smeg
          • V-ZUG
        • Пароварки
          • De Dietrich
          • Gaggenau
          • Ilve
          • Kuppersbusch
          • Smeg
          • V-ZUG
        • Паровые шкафы для одежды
          • V-ZUG
        • Подогреватели
          • Asko
          • Bertazzoni
          • De Dietrich
          • Franke
          • Gaggenau
          • Kuppersbusch
          • Signature Kitchen Suite
          • Smeg
          • V-ZUG
        • Посудомоечные машины
          • Asko
          • Bertazzoni
          • Brandt
          • De Dietrich
          • Franke
          • Gaggenau
          • Kaiser
          • Kuppersbusch
          • Signature Kitchen Suite
          • Smeg
          • V-ZUG
        • Стиральные машины
          • Asko
          • Brandt
          • De Dietrich
          • Gaggenau
          • Kuppersbusch
          • Schulthess
          • Smeg
          • V-ZUG
        • Сушильные машины
          • Asko
          • Brandt
          • De Dietrich
          • Gaggenau
          • Kuppersbusch
          • Schulthess
          • Smeg
          • V-ZUG
        • Сушильные шкафы
          • Schones Feuer
        • Холодильники
          • Asko
          • Bertazzoni
          • Brandt
          • De Dietrich
          • Franke
          • Gaggenau
          • Ilve
          • Kaiser
          • Kuppersbusch
          • Signature Kitchen Suite
          • Smeg
          • V-ZUG
      • Отопление
        • Водонагреватели
          • Бойлеры
            • Arideya
            • Ariston
            • Ballu
            • Baxi
            • Dakor
            • Drazicce
            • Drazice
            • ECA
            • Federica Bugatti
            • Ferroli
            • Hajdu
            • Immergas
            • Metalac
            • Midea
            • Protherm
            • Rispa
            • Royal Clima
            • Royal Thermo
            • SteelSun
          • Буферные накопители
            • 9Bar
            • Amteo
            • Buderus
            • Ecosystem
            • Eldom
            • Galmet
            • Gekon
            • Hajdu
            • Huch EnTEC
            • Kospel
            • Nibe
            • Rispa
            • S Tank
            • TESY
            • Tesy
            • Thermex
            • Теплодар
            • Эван
          • Проточные воданагреватели
            • Edisson
            • Electrolux
            • Kospel
            • Midea
            • Oasis
            • Stiebel
            • Termica
            • Thermex
            • Unipump
            • Zanussi
            • Zota
            • Эван
          • Электрические водонагреватели
            • Ariston
            • Ballu
            • Electrolux
            • Gorenje
            • Haier
            • Zanussi
        • Котлы
          • Газовые котлы
            • Arderia
            • Ariston
            • Baxi
            • Bosch
            • Chaffoteaux
            • Dakor
            • De Dietrich
            • E.C.A.
            • FED
            • Federica Bugatti
            • Ferroli
            • Fondital
            • Haier
            • Hi-Therm
            • HUBERT
            • Immergas
            • Italtherm
            • Kiturami
            • Midea
            • Mizudo
            • Moguchi
            • MORA-TOP
            • Navien
            • Protherm
            • Vaillant
            • Лемакс
            • Луч
            • Очаг
            • Сигнал-Теплотехника
            • Элемент Комфорта
          • Дизельные котлы
            • De Dietrich
            • Kiturami
            • Navien
          • Котлы дизель/газ
            • ACV
            • Buderus
            • De Dietrich
            • Hansa
            • Kentatsu
            • Lamborghini
            • Protherm
            • Schuster
            • Sime
            • Unical
            • Viessmann
            • Атмос
          • Котлы на отработанном масле
            • CAROS
            • DanVex
            • NORTEC
          • Промышленные котлы
            • РЗКО
          • Твердотопливные, жидкотопливные котлы
            • EcoBoil
            • Kentatsu
            • Kiturami
            • Navien
            • Sime
            • Stropuva
            • Zota
            • Конорд
            • Лемакс
            • НМК
            • СТЭН
            • Теплодар
          • Электрические котлы
            • Arderia
            • Baxi
            • E.C.A.
            • ElectroVel
            • FED
            • Ferroli
            • Hi-Therm
            • Kentatsu
            • Kotitonttu
            • MORA-TOP
            • Navien
            • Oasis
            • Protherm
            • Rispa
            • SteelSun
            • Stout
            • Teplodom
            • Termica
            • Thermex
            • Thermona
            • Vaillant
            • Viessmann
            • Zota
            • ZOTA
            • Бастион
            • Ресурс
            • СТЭН
            • Теплодар
            • Теплотех
            • Эван
      • Камины и печи
        • Электрокамины
          • Dimplex
          • Electrolux
          • Real Flame
          • Royal Flame
          • Schones Feuer
            • Базовые камины
            • Камины для HoReCa
            • Камины увлажнители
            • HOT LINE
            • HOT LINE PRO
            • RGB
        • Порталы
          • Dimplex
          • Electrolux
          • Real Flame
          • Royal Flame
        • Биокамины
          • Decofire
          • FireBird
          • Firelight
          • Firezo
          • Firezo-Decofire
          • Kratki
          • Silver Smith
        • Газовые камины
          • Faber
          • Karma
          • Kratki
        • Дровяные камины и печи
          • ABX
          • ASTON
          • Centrometal
          • Contura
          • DEFRO
          • DeMarco
          • ECT
          • Fabrilor
          • Ferguss
          • Fire Bowls
          • Firebird
          • Fireway
          • Fogo Montanha
          • GUCHA
          • Hosseven
          • Hugett
          • Invicta
          • KAMELEK
          • Kawmet
          • Kratki
          • La-Nordica
          • LK
          • MadeIra
          • MBS
          • MCZ
          • Navien
          • Nordpeis
          • Plamen
          • Restart
          • Solzaima
          • THORMA
          • TMF
          • TRAFORART
          • АОГВ
          • Барга
          • Везувий
          • Ермак
          • Смуглянка
          • Теплодар
          • Термофор
          • Эверест
          • Экокамин
      • Тепловые насосы
        • Аксессуары
          • Daikin
          • Fairland
          • Haier
          • Hayward
          • Hitachi
          • SagaTherm
        • Воздух-Вода
          • Водяные баки
            • Daikin
            • Gree
            • Hitachi
          • Гидромодули
            • Daikin
            • Hajdu
            • Hitachi
            • Lessar
            • Mitsubishi Electric
            • Panasonic
          • Комплекты
            • AquaViva
            • Haier
            • Joyclima
            • Kitano
            • SILA
            • TCL
            • TICA
          • Моноблоки
            • AquaViva
            • Daikin
            • Fairland
            • Haier
            • Hayward
            • Hitachi
            • Joyclima
            • Kitano
            • Lessar
            • SILA
            • TCL
            • Thermex
            • TICA
            • VETERO
          • Наружные блоки
            • Daikin
            • Hitachi
            • Lessar
            • Mitsubishi Electric
            • Mitsubishi Heavy
            • Panasonic
        • Воздух-Воздух
          • Ballu
          • Bosch
          • Casarte
          • Cooper
          • CooperHunter
          • Daichi
          • Daikin
          • Dantex
          • Electrolux
          • Energolux
          • Eurohoff
          • Euroklimat
          • Ferrum
          • Funai
          • Gree
          • Haier
          • Hisense
          • Hitachi
          • ISHIMATSU
          • Kalashnikov
          • Kentatsu
          • Lg
          • Midea
          • Mitsubishi Electric
          • Panasonic
          • Pioneer
          • Roda
          • Rovex
          • Royal Clima
          • Samsung
          • SYSCOOL
          • Systemair
          • TCL
          • TICA
          • Toshiba
          • Tosot
          • VETERO
          • VIVAX
        • Грунт-Вода
          • Внутренние блоки
            • SagaTherm
            • SILA
            • Thermex
          • Гидромодули
            • Daikin
            • Panasonic
      • Баня и сауна
        • Дровяные печи
          • Aston
          • Fireway
          • Grill'D
          • HARVIA
          • IKI
          • Kastor
          • Narvi
          • TMF
          • Баргузин
          • Березка
          • Везувий
          • Ермак
          • Парабель
          • Теплодар
          • Царь печи
          • Эверест
          • ЭТНА
        • ИК оборудование
          • HARVIA
          • Helo
          • SENTIOTEC
          • Tylo
        • Пародушевые модули
          • HARVIA
          • Tylo
        • Электрические печи
          • Grill'D
          • HARVIA
          • Helo
          • IKI
          • Karina
          • Lang
          • LK
          • SAUNUM
          • SAWO
          • SENTIOTEC
          • TMF
          • Tylo
          • Везувий
          • Паромакс
          • Теплодар
          • ЭКМ
      Поиск Корзина Корзина 00 ₽ Сравнение Войти
      Авторизация
      Забыли пароль?
      Регистрация

      Дровяная печь HARVIA Classic 140

      • Главная
      • Баня и сауна
        • Кондиционирование
        • Техника для дома
        • Отопление
        • Камины и печи
        • Тепловые насосы
        • Баня и сауна
      • Дровяные печи
        • Дровяные печи
        • ИК оборудование
        • Пародушевые модули
        • Электрические печи
      • HARVIA
        • Aston
        • Fireway
        • Grill'D
        • HARVIA
        • IKI
        • Kastor
        • Narvi
        • TMF
        • Баргузин
        • Березка
        • Везувий
        • Ермак
        • Парабель
        • Теплодар
        • Царь печи
        • Эверест
        • ЭТНА
      • Дровяная печь HARVIA Classic 140
      Дровяная печь HARVIA Classic 140
      Дровяная печь HARVIA Classic 140
      Дровяная печь HARVIA Classic 140
      Дровяная печь HARVIA Classic 140
      Дровяная печь HARVIA Classic 140
      Дровяная печь HARVIA Classic 140
      Дровяная печь HARVIA Classic 140
      Дровяная печь HARVIA Classic 140
      Дровяная печь HARVIA Classic 140
      На складе: 50 шт. Код товара: 69235
      HARVIA Производитель

      76 621 ₽

      Быстрый заказ
      Цена для своих!
      Характеристики
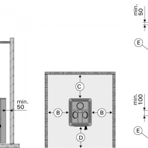
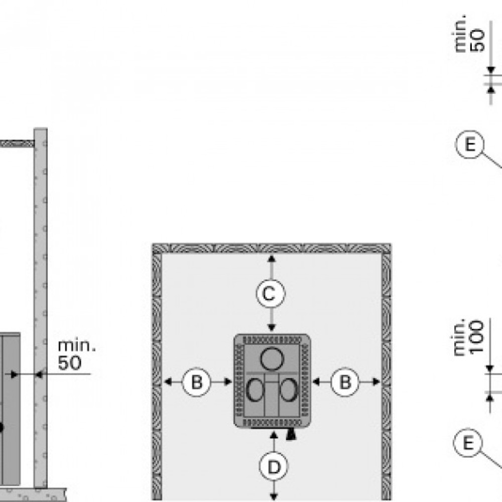
      Безопасное расстояние сбоку и сзади, мм300 Безопасное расстояние сверху, мм1200 Безопасное расстояние спереди, мм300
      Вес камней, кг40 Вес, кг49 Высота, см77
      Габариты (ВхШхГ), мм770х445х470 Гарантия1 год Глубина, см47
      Все характеристики
      Информация о доставке
      Цена для своих!

      Если у конкурента цена ниже — сделаем скидку! Промокод отправим на телефон или электронную почту.

      Введите адрес доставки
      Скачать КП
      Описание

      Описание HARVIA Classic 140

      Дровяная печь Harvia Classic 140 предназначена для маленьких парилок. Она имеет небольшие габаритные размеры и растапливается из парилки. Главное достоинство всех печей серии Classic — оригинальный корпус, который при незначительном увеличении габаритных размеров, по сравнению с аналогичными моделями, вмещает почти на одну треть больше камней. Больший объём камней позволил добиться более равномерного прогрева помещения и улучшить качество пара. Кроме того, конструкция корпуса печей Classic предусматривает увеличение открытой площади камней, которое также положительно влияет на атмосферу в парилке.

      В серии Harvia Classic предлагается несколько моделей каменок, подходящих для дровяных саун различных размеров. Крепкое железо и нержавеющая сталь гарантируют надежность. Чугунная дверца со стеклом дает возможность дополнить атмосферу сауны теплыми отблесками огня. Чтобы сделать эти каменки еще более удобными, можно изменить сторону открывания дверцы. Каменку можно оснастить баком для воды. Регулируемые ножки облегчают установку каменки в сауне. Рекомендуемый объем сауны от 6 до 13 м3, максимальное количество камней – 40 кг.

       

      Технические характеристики Дровяная печь HARVIA Classic 140
      Характеристики
      Безопасное расстояние сбоку и сзади, мм 300
      Безопасное расстояние сверху, мм 1200
      Безопасное расстояние спереди, мм 300
      Вес камней, кг 40
      Вес, кг 49
      Высота, см 77
      Габариты (ВхШхГ), мм 770х445х470
      Гарантия 1 год
      Глубина, см 47
      Диаметр дымохода, мм 115
      Код производителя WKC140
      Материал Сталь
      Мощность, кВт 16,5
      Отапливаемый объем, м³ 13
      Страна производства Финляндия
      Тип каменки Открытая
      Тип топки Встроенная
      Толщина крышки над огнем, мм 5
      Топливо Дрова
      Топочная дверца Со стеклом
      Цвет Черный
      Ширина, см 44,5
      Отзывы 0
      Пожалуйста авторизируйтесь или создайте учетную запись перед тем как написать отзыв
      Вопросы и ответы 0
      • Еще не было вопросов
      Задать вопрос
      Выберите обязательные опции
      Быстрый заказ
      МетеоЦентр

      ул. Тургенева 129, Краснодар, Краснодарский край, Россия, 350049


      © 2011 - 2026, МетеоЦентр

      Кондиционирование
      • Настенные сплит системы
      • Промышленные и полупромышленные кондиционеры
      • Мульти сплит системы
      • Мобильные кондиционеры
      • VRF системы
      Техника для дома
      • Варочные панели
      • Вытяжки
      • Духовые шкафы
      • Стиральные машины
      • Сушильные машины
      • Холодильники
      Отопление
      • Газовые котлы
      • Дизельные котлы
      • Твердотопливные, жидкотопливные котлы
      • Электрические котлы
      • Промышленные котлы
      • Котлы на отработанном масле
      Поддержка
      • +7 (918) 988-97-99
      • +7 (861) 205-05-65
      • Обратный звонок
        Заказать обратный звонок

      Пн-Пт, с 09:00-18:00 (МСК)

      МетеоЦентр

      ул. Тургенева 129, Краснодар, Краснодарский край, Россия, 350049,
      © 2011 - 2026, МетеоЦентр

      • МИР
      • Система Быстрых Платежей
      • Наличная оплата